BIM & Revit Model
We go beyond conventional design, embracing the power of Building Information Modeling and Revit technology to revolutionize the way MEP systems are visualized, constructed, and managed

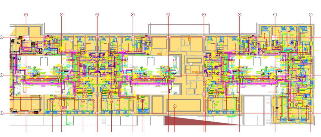
BIM Model
Why To Choose Us?
Our commitment extends beyond conventional design, leveraging the prowess of Building Information Modeling to transform how MEP systems are visualized, constructed, and managed.
Holistic Project Visualization
Our BIM models provide a comprehensive view, allowing you to explore every detail from concept to construction.
Precision in Execution
Our BIM models lay the groundwork for accurate construction, offering a 3D representation that streamlines coordination and minimizes conflicts during the building process.
Efficiency through Collaboration
BIM fosters seamless collaboration among stakeholders, reducing errors and enhancing communication for a more streamlined project.
Lifecycle Insight
BIM provides a platform for monitoring and managing MEP systems from design through construction and operation, ensuring long-term efficiency.
Revit Model
Why To Choose Us?
Experience the pinnacle of precision with our Revit Model Design services. We harness the advanced capabilities of Revit technology to elevate the accuracy, efficiency, and visualization of your MEP systems.
Detailed Project Visualization
Immerse yourself in detailed project visualization. Our Revit models offer a high level of detail, allowing you to explore every intricate aspect of your MEP systems.
Real-Time Insights
Our Revit models serve as dynamic digital twins, providing immediate information for informed decision-making during every phase of the project lifecycle.
Efficiency in Collaboration
evit models facilitate seamless collaboration among stakeholders, ensuring a unified understanding and smoother project execution.
Adaptive Design
Revit models allow for swift adjustments and modifications, ensuring that your MEP systems can adapt to evolving project requirements..